As Oy Ylöjärven Masuuni
Hyttikuja 1, Ylöjärvi
Uusi laadukas ja monipuolinen rivitalokohde Siltatien asuinalueelle
Huippuluokan pohjaratkaisut edullisin asumiskustannuksin
As Oy Ylöjärven Masuuni on neljän rivitalon muodostama tyylikäs kokonaisuus, jossa on 19 huolella suunniteltua kotia 62m2 kaksioista – aina 90 m2 tilaviin nelikoihin. Valittavana on sekä yksitasoisia että kaksitasoisia asuntoja eri elämäntilanteisiin. Alla muutamia visualisointikuvia. Tilaa esite tutustuaksesi tarkemmin eri huoneistotyyppeihin.
Kohteen ehdoton vahvuus on huippuluokan pohjaratkaisut. Asunnot on suunniteltu yhdessä ammattitaitoisen arkkitehdin kanssa käytännöllisyys, tilantuntu ja arjen sujuvuus huomioiden. Kolmioissa ja nelikoissa kaksi WC-tilaa helpottaa arkea, ja kaikissa kodeissa on erillinen kodinhoitotila sekä poikkeuksellisen runsaasti säilytystilaa. Kaksioissa, kolmioissa ja kaksikerroksisissa nelikoissa ovat erilliset vaatehuoneet.
Jokaisen asunnon yhteydessä on myös 4,5 – 5 m² lämmin varasto.
Katettu sisäänkäynti tuo arkeen mukavuutta ja käytännöllisyyttä tarjoten suojaisaa tilaa esimerkiksi lastenvaunuille ja polkupyörille.
Energiatehokas maalämpö pitää asumiskustannukset alhaisina. Jokaiselle huoneistolle on varattu ostettavaksi katoksellinen autopaikka 11 kW sähköauton latauslaitteella.
YKSILÖLLINEN SISUSTUSSUUNNITTELU
Asunnot sisustetaan asukkaan ja sisustussuunnittelijan yhdessä laatiman suunnitelman mukaisesti. Pääset siis vaikuttamaan pintamateriaalien kuten keittiökaapinovien, työtasojen, välitilojen ja sisustuksen viimeistelevien vetimien valintaan sekä kodin värimaailmaan, mikäli varaat asunnon hyvissä ajoin. Laajat laattavalikoimat ja lattian kuosivaihtoehdot tekevät jokaisesta kodista persoonallisen ja asiakkaiden toiveiden mukaisen. Materiaalivalikoimassamme on runsaasti hyväksi koettuja sisustusratkaisuja ja materiaaleja laadukkaasta tuoteperheestä, joka päivittyy sisustustrendien mukaisesti. Asiakkaan on mahdollista tehdä myös lisähintaisia valintoja kuten keraamiset -tai kivitasot, mustat hanavaihtoehdot, sadesuihku ja led-valaistus saunatiloihin Olemme saaneet erityistä kiitosta sisustussuunnittelun tasosta ja asuntojen viimeistelystä. Katso sisustussuunnittelustamme kertova lyhytvideo https://taloteko.fi/sisustussuunnittelu/
ISOT KATETUT TERASSIT JA LÄMPIMÄT VARASTOTILAT
Kaikissa asunnoissa on koko asunnon levyinen katettu terassi ja kaksitasoisissa huoneistoissa katettu parveke, jotka voidaan lasittaa lisähinnasta. Lasitetut terassi-ja parveke laajentavat kodin tiloja aikaisin keväällä ja aina pitkälle syksyyn saakka. Terassin edessä olevaa pensasaidalla reunustettua piha-aluetta asukas hallitsee itsenäisesti. Voit toteuttaa siellä omat puutarhaunelmasi. Huoneistojen ulko-oven vieressä 4,5- 5 m2 on lämmin varastotila, jossa voi säilyttää vaikka kausivaatteita tai urheiluvälineitä.
KOULU- JA LÄHIPALVELUT
Siltatien alue tarjoaa rauhallisen ja luonnonläheisen asuinympäristön. Alueelle on valmistunut uusi yhtenäiskoulu, jossa toimivat jo vuosiluokat 0-5 ja vaativan erityisen tuen luokat. V. 2027 valmistuu kolmes vaihe ja viimeistään vuoteen 2030 mennessä koulussa toimivat perusopetuksen luokat 0-9 sekä vaativan erityisen tuen luokat. Koulun vieressä sijaitsee tekojäärata ja urheilukenttä. Alueella onkin hyvät mahdollisuudet monipuoliseen liikuntaan ja urheiluun. Muutaman kilometrin päässä sijaitsevat päivittäistavarapalvelut.
ENERGIATEHOKAS, EKOLOGINEN LÄMMITYS JA ILMANVAIHTO
Kohde lämpiää maalämmöllä, joka tuotetaan palveluntuottajamallilla. Kaikissa asunnoissa on vesikiertoinen lattialämmitys ja kesäaikana edistyksellinen lattiaviilennys. Lämpö jaetaan tasaisesti sisustajaystävällisen vesikiertoisen lattialämmityksen avulla. Ilmanvaihto toteutetaan tehokkaalla ilmanvaihtolaitteella, jossa hyvä vuosihyötysuhde. Edulliset lämmityskulut näkyvät edullisena hoitovastikkeena. Kylmän ja lämpimän veden mittaus toteutetaan etäluettavilla vesimittareilla, joten maksat vain oman kulutuksen mukaan.
AUTOPAIKAT
Jokaiselle huoneistolle on varattu mahdollisuus ostaa katoksellinen autopaikka. Autopaikoilla on sähköauton latausmahdollisuus 11 kW.
TONTTI
As Oy Ylöjärven Masuuni sijaitsee Ylöjärven kunnan vuokratontilla. Tonttivuokra sisältyy hoitovastikkeeseen.
ASUNTOJEN VARAAMINEN
Ole nopea ja varaa unelmakotisi ajoissa. Ota yhteyttä puhelimitse tai sähköpostilla, niin kerron kohteesta lisää.
Heikki Riihimäki
0400 640674
heikki.riihimaki@taloteko.fi
Margit Artimaa
050 501 0006
margit.artimaa@taloteko.fi
MIKSI OSTAA ASUNTO JUURI TÄSTÄ YHTIÖSTÄ?
- huippuluokan pohjaratkaisut kaksioista nelikoihin
- edullinen ja ekologinen maalämpö ja lattiaviilennys
- yksilöllinen sisustussuunnittelu ammattitaitoisen sisustussuunnittelijan kanssa
- kaikissa asunnoissa on lämmin 4,5m2 – 5m2 lämmin varastotila huoneiston yhteydessä ja katettu sisääntulo
- mahdollisuus lasittaa tilavat terassi ja parveke
- jokaiselle huoneoistolle on varattu mahdollisuus ostaa katoksellinen autopaikka
sähköauton latauslaitteella 11 kW
Rakentajana Taloteko tunnetaan laadukkaista ja hyvin suunnitelluista asunnoista. Asunnot ovat aina valmistuneet sovitussa aikataulussa ja ne luovutetaan asiakkaille virheettöminä. Erityiskiitosta olemme saaneet erinomaisesta asiakaspalvelusta ja tasokkaasta sisustussuunnittelusta.
PERUSTIEDOT
Sijainti: Hyttikuja 1, Ylöjärvi
Rakennusvaihe: Ennakkomarkkinoinnissa
Rakentamisen aloitus: kesä 2026
Muuttovalmis: marraskuun loppuun 2027
Taloyhtiö: As Oy Ylöjärven Masuuni
YLEISIÄ LISÄTIETOJA
Taloyhtiöllä on Ylöjärven kaupungin vuokratontti
Huoneistojen omistusmuoto: Oma
Huoneistoja yhteensä: 19 asuntoa
Kyseessä on RS-kohde


































Asunnot
Huoneisto
Selite
Koko
Kerros
Myyntihinta
Velaton myyntihinta
Tila
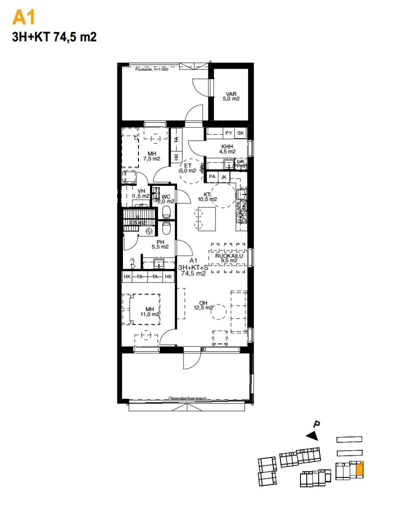
Huoneisto:
A1
Selite:
3h + kt + s
Koko:
74,5m2
Kerros:
1
Myyntihinta:
113 129€
Velaton myyntihinta:
273 900€
Tila:
varattu
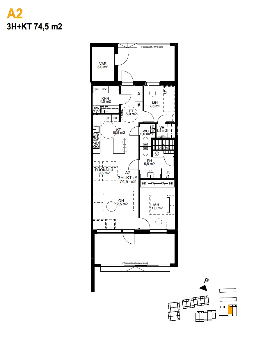
Huoneisto:
A2
Selite:
3h + kt + s
Koko:
74,5m2
Kerros:
1
Myyntihinta:
109 129 €
Velaton myyntihinta:
269 900€
Tila:
vapaa
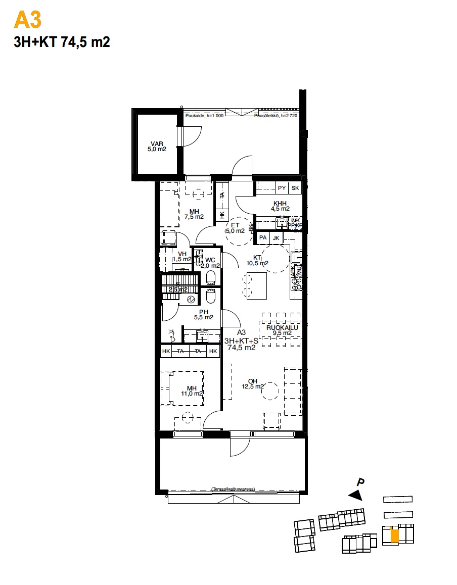
Huoneisto:
A3
Selite:
3h + kt + s
Koko:
74,5 m2
Kerros:
1
Myyntihinta:
109 129€
Velaton myyntihinta:
269 900€
Tila:
vapaa
Huoneisto:
A4
Selite:
4h + kt + s
Koko:
84,5 m2
Kerros:
1
Myyntihinta:
132 649€
Velaton myyntihinta:
315 000€
Tila:
vapaa
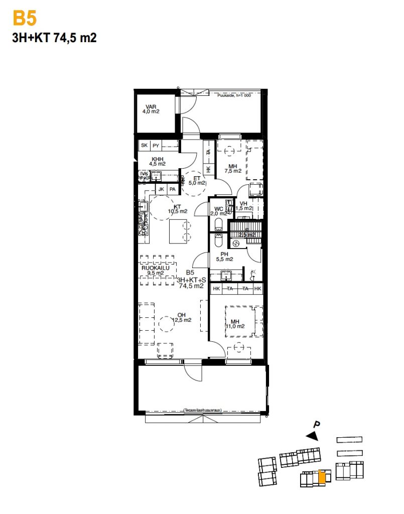
Huoneisto:
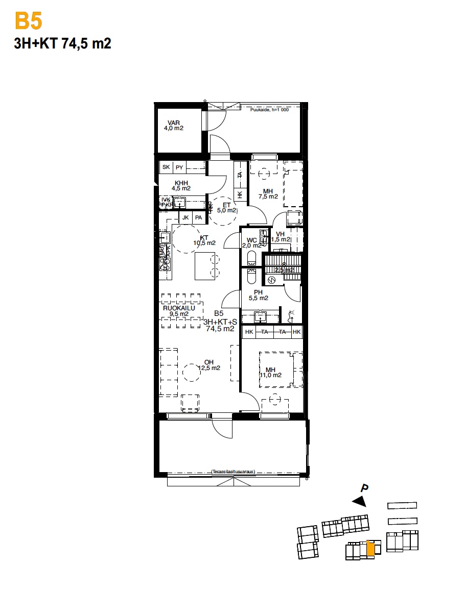
B5
Selite:
3h + kt + s
Koko:
74,5 m2
Kerros:
1
Myyntihinta:
109 129€
Velaton myyntihinta:
269 900€
Tila:
vapaa
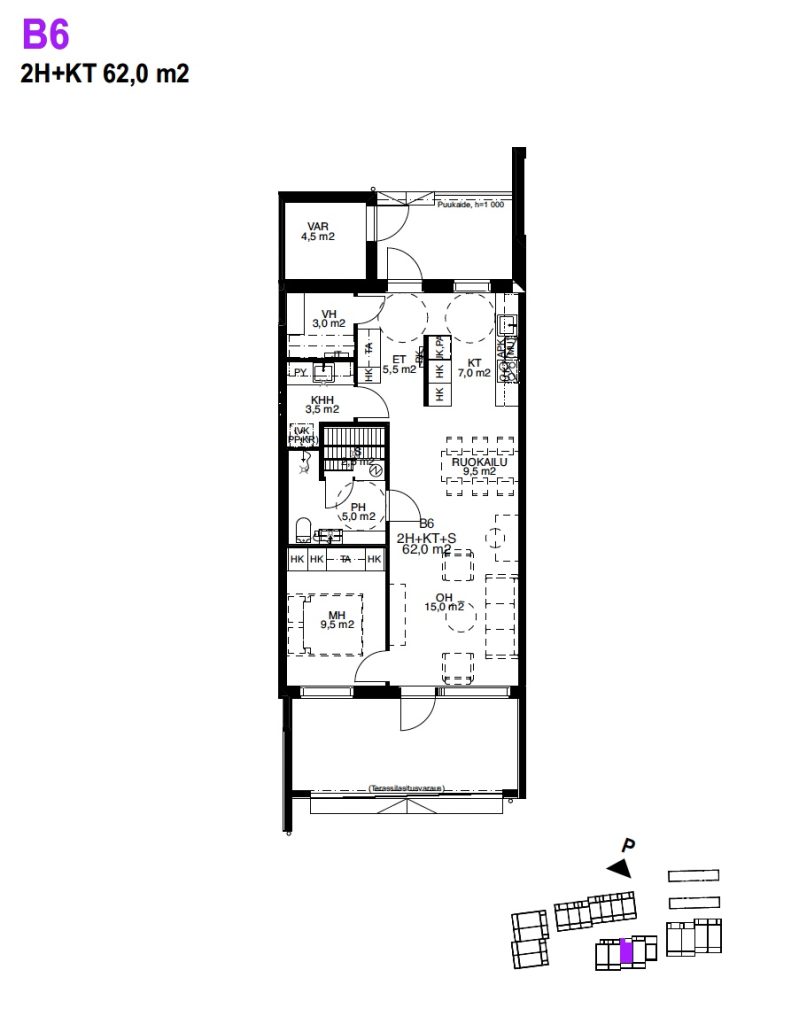
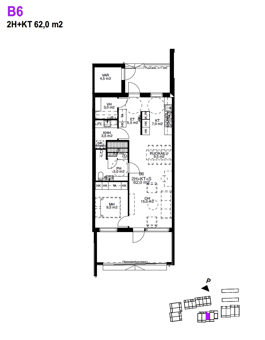
Huoneisto:
B6
Selite:
2h + kt + s
Koko:
62 m2
Kerros:
1
Myyntihinta:
225 500€
Velaton myyntihinta:
91 704€
Tila:
vapaa
Huoneisto:
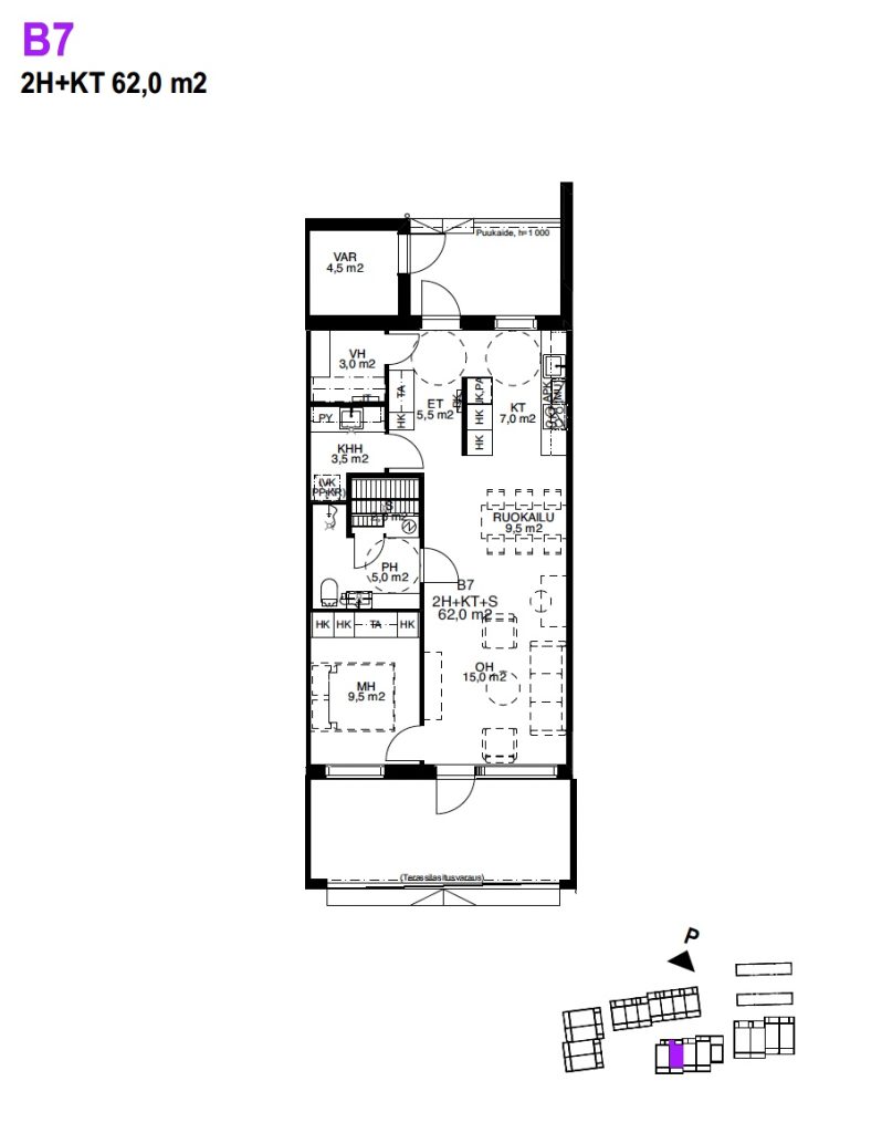
B7
Selite:
2h + kt + s
Koko:
62 m2
Kerros:
1
Myyntihinta:
225 500€
Velaton myyntihinta:
91 704 €
Tila:
vapaa
Huoneisto:
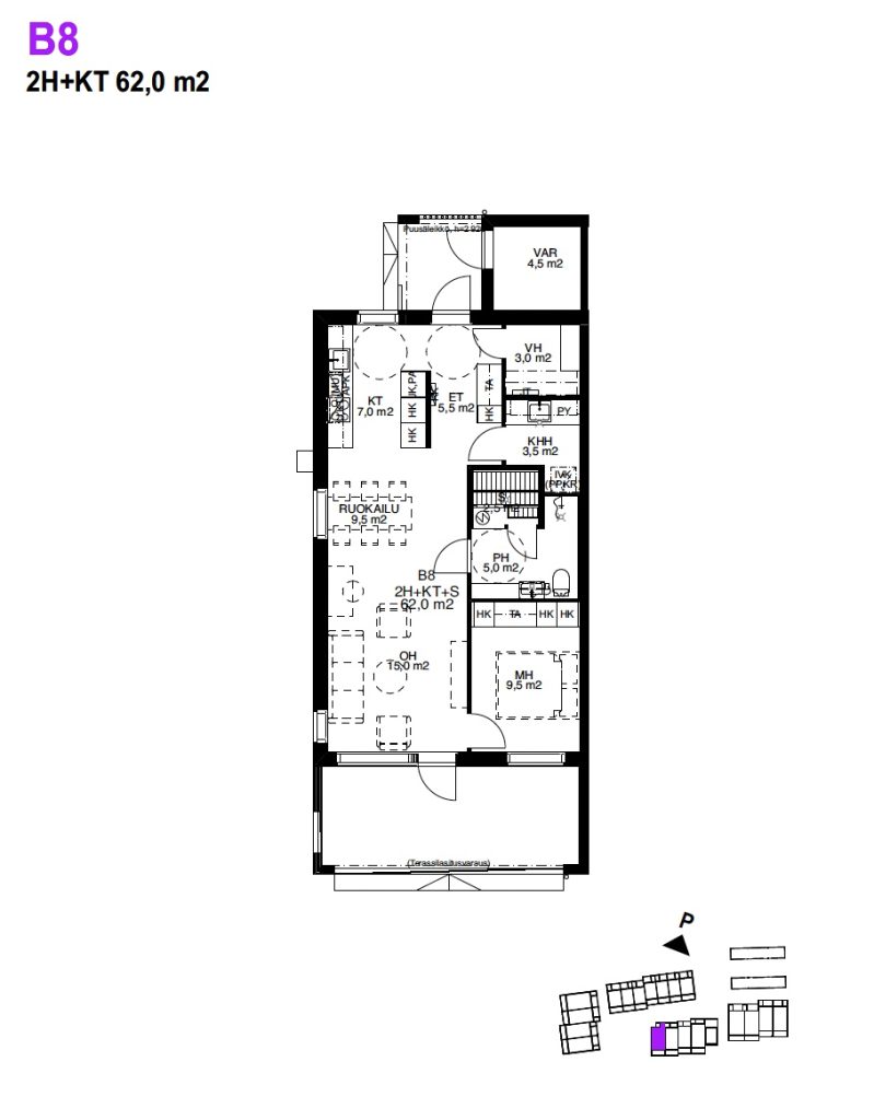
B8
Selite:
2h + kt + s
Koko:
62 m2
Kerros:
1
Myyntihinta:
95 704€
Velaton myyntihinta:
229 500€
Tila:
vapaa
Huoneisto:
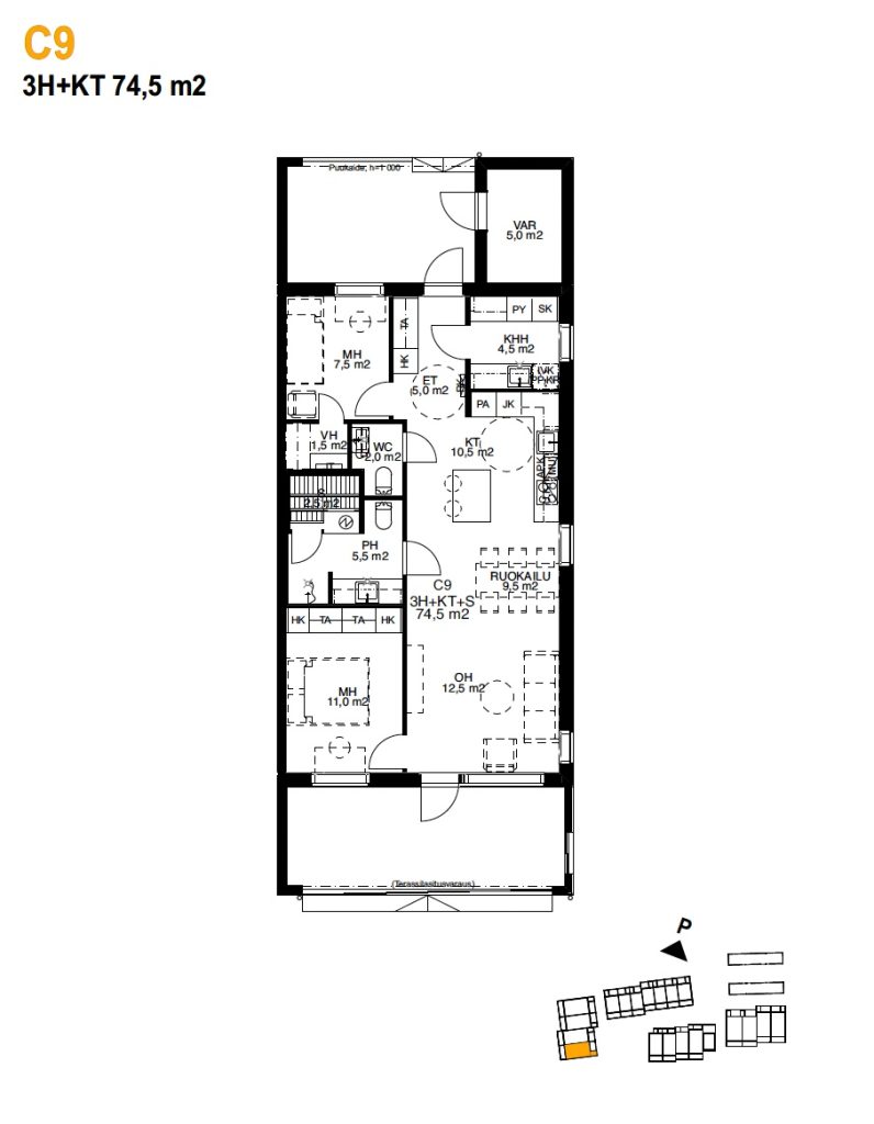
C9
Selite:
3h + kt + s
Koko:
74,5 m2
Kerros:
1
Myyntihinta:
113 129€
Velaton myyntihinta:
273 900 €
Tila:
vapaa
Huoneisto:
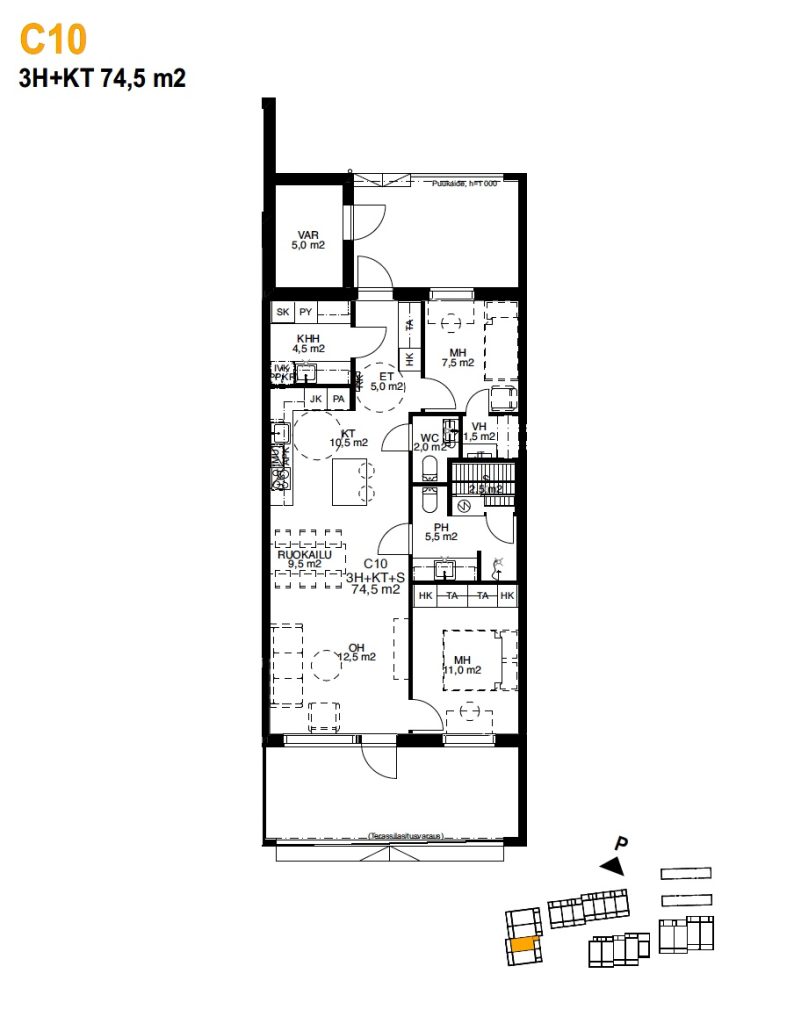
C10
Selite:
3h + kt + s
Koko:
74,5 m2
Kerros:
1
Myyntihinta:
109 129€
Velaton myyntihinta:
269 900€
Tila:
vapaa
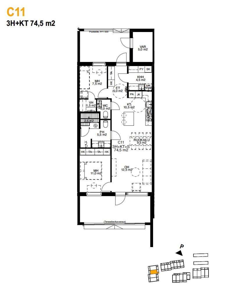
Huoneisto:
C11
Selite:
3h + kt + s
Koko:
74,5 m2
Kerros:
1
Myyntihinta:
109 129€
Velaton myyntihinta:
269 900€
Tila:
vapaa
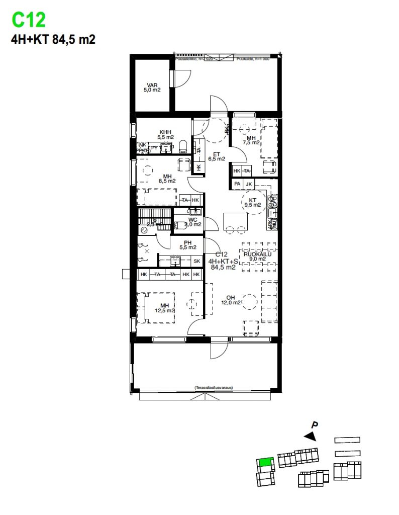
Huoneisto:
C12
Selite:
4h + kt + s
Koko:
84,5 m2
Kerros:
1
Myyntihinta:
132 649€
Velaton myyntihinta:
315 000 €
Tila:
vapaa
Huoneisto:
D13
Selite:
4h + kt + s
Koko:
90 m2
Kerros:
2
Myyntihinta:
121 780€
Velaton myyntihinta:
316 000€
Tila:
vapaa
Huoneisto:
D14
Selite:
3h + kt + s
Koko:
80 m2
Kerros:
2
Myyntihinta:
106 360€
Velaton myyntihinta:
279 000€
Tila:
vapaa
Huoneisto:
D15
Selite:
3h + kt + s
Koko:
80 m2
Kerros:
2
Myyntihinta:
106 360€
Velaton myyntihinta:
279 000€
Tila:
vapaa
Huoneisto:
D16
Selite:
3h + kt + s
Koko:
80 m2
Kerros:
2
Myyntihinta:
106 360€
Velaton myyntihinta:
279 000€
Tila:
vapaa
Huoneisto:
D17
Selite:
3h + kt + s
Koko:
80 m2
Kerros:
2
Myyntihinta:
106 360€
Velaton myyntihinta:
279 000€
Tila:
vapaa
Huoneisto:
D18
Selite:
3h + kt + s
Koko:
80 m2
Kerros:
2
Myyntihinta:
106 360€
Velaton myyntihinta:
279 000€
Tila:
vapaa
Huoneisto:
D19
Selite:
4h + kt + s
Koko:
90 m2
Kerros:
2
Myyntihinta:
124 780€
Velaton myyntihinta:
319 000€
Tila:
vapaa
Kysy lisätietoja kohteesta:
Heikki Riihimäki
Toimitusjohtaja
0400 640 674
heikki.riihimaki@taloteko.fi
Margit Artimaa
Sisustussuunnittelija ja asiakaspalvelija
050 501 0006
margit.artimaa@taloteko.fi